


LQZ球型支座工作原理和構造:
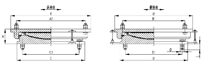
球型支座由下座板、球面四氟板、密封裙、中間座板、平面四氟板、上滑板和上座板組成。
球型支座的水平位移是由上(支座)滑板與中座板上的平面四氟板之間的滑動來實現的。另外,通過在上座板上設置導向板(槽)或導向環來約束支座的單向或多向位移,可以制成單向活動球型支座和固定球型支座。
球型支座的轉角是由中座板的凸球面與下座板上的球面四氟板之間的滑動來實現的。通常由于支座的轉動與上部結構的轉動不復合,而在中座板和下座板之間形成第滑動面。根據上部結構與支座轉動中的相對位置,球面轉動方向可以與平滑動方向一致或相反。如果兩個轉動復合,則無平面滑動。
LQZ球型支座的特點:
LQZ球型支座險具有一般球型轉角大、轉動靈活、轉動力矩與轉角無關、轉動性能各個方向一致等優點外,還有以下幾大特點:
1、承載噸位大-最支反力可超過100000KN;
2、轉角大(最轉角0.06)
3、耐腐蝕能力大大增強,可在海洋大氣及飛濺區等惡劣環境下使用。
4、平面滑動和轉動磨擦阻力小。
5、防塵防水性能好,可保證磨擦副無腐蝕無污染。
6、設計壽命長(按100年設計)
7、支座小巧輕便,較同樣支反力的盆式橡膠支座重量減輕40-50%,較同樣支反力的其它球座重量減輕20~25%。
LQZ高承載全封閉球型支座代號分類:
LQZ高承載全封閉球型支座規格系列:
LQZ 型雙向活動球型支座
LQZ 型單向活動球型支座
LQZ 型固定球型支座
