
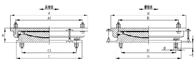
LQZ高承載全封閉球型支座工作原理和構造:
LQZ高承載全封閉球型支座由下座板、球面四氟板、密封裙、中間座板、平面四氟板、上滑板和上座板組成。
LQZ高承載全封閉球型支座的水平位移是由上(支座)滑板與中座板上的平面四氟板之間的滑動來實現的。另外,通過在上座板上設置導向板(槽)或導向環來約束支座的單向或多向位移,可以制成單向活動球型支座和固定球型支座。
LQZ高承載全封閉球型支座的轉角是由中座板的凸球面與下座板上的球面四氟板之間的滑動來實現的。通常由于支座的轉動與上部結構的轉動不復合,而在中座板和下座板之間形成滑動面。根據上部結構與支座轉動的相對位置,球面轉動方向可以與平滑動方向一致或相反。如果兩個轉動復合,則無平面滑動。
LQZ 系列球型支座結構型式及規格系列:
LQZ 型雙向活動球型支座
LQZ 型單向活動球型支座
LQZ 型固定球型支座

